Wir heißen Sie herzlich willkommen in unserem Showroom in Bedburg-Hau.
Vereinbaren Sie einen Termin oder wählen Sie eine der anderen Beratungsmöglichkeiten.
Dank unserer langjährigen Erfahrung in der Welt der Aluminium-Terrassenüberdachungen, Gartenzimmer und Glasschiebewände beraten wir Sie kompetent und ehrlich. Anschließend nehmen wir bei Ihnen vor Ort das Aufmaß für Ihre Neuanschaffung und kümmern uns sowohl um die technischen Berechnungen als auch um die Montage. Wir kümmern uns um Sie von A bis Z.
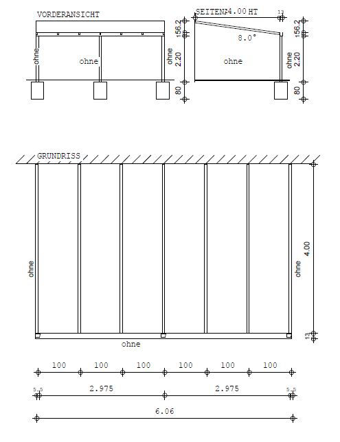
Zu jeder Terrassenüberdachung erhalten Sie eine statische Berechnung die auf Grundlage der eingegebenen Geometrie und der gewählten Schnee- und Windlasten.
DIN EN 1990 Eurocode 0: Grundlagen der Tragwerksplanung - DIN EN 1991 Eurocode 1: Einwirkungen auf Tragwerke - DIN EN 1992 Eurocode 2: Beton-, Stahlbetontragwerke - DIN EN 1993 Eurocode 3: Stahlbau - DIN EN 1997 Eurocode 7: Geotechnik - DIN EN 1999 Eurocode 9: Aluminiumtragwerke - DIN 18008, TRLV Technische Regeln f.d. Verwendung linienförmig gelagerter Verglasungen
Durch unsere eigenen Fahrzeuge und Fahrer sind wir unabhängig von Logistikunternehmen und können eine schnelle und zuverlässige Lieferung für unsere Kunden in Deutschland garantieren. Wir begleiten die Projekte so von der Konzeption bis hin zur Lieferung.
Unabhängig vom Bestimmungsort garantieren wir die Lieferung von Waren über unser operatives Netzwerk in den wichtigsten europäischen Ländern.
Unseren Schwerpunkt haben wir auf die Pulverbeschichtung mit höchstem Qualitätsstandard gelegt. Durch die moderne Pulverbeschichtung der Aluminiumprofile werden diese zu langlebigen und stabilen Systemteilen, die extrem kratz-, stoß- und korrosionsgeschützt sind. Den Farbwünschen unserer Kunden sind bei der Beschichtung keine Grenzen gesetzt.
Durch die richtige Vorbehandlung verbessern wir die Haftung und sorgen für Witterungsbeständigkeit und Korrosionsschutz.